Not every fireplace project is a piece of cake; sometimes customers seek out Acucraft to fix what was their dream fireplace, which is what happened to the Connor family in Montana.
Dan, Contractor at Martel Construction, came to Acucraft hoping we could provide a gas fireplace transformation for these new homeowners; we were happy to help!
From Disappointment to Dream Come True
Imagine building your dream home, complete with a custom fireplace designed to be the heart and soul of your living space, only to be disappointed when construction is over.
That’s exactly what happened to the Connors, homeowners in Montana. Their dream turned into a disheartening reality when their intricately designed indoor fire pit, featuring an open view and a suspended hood, fell well short of their expectations.
Luckily, the contractor overseeing the project was well-acquainted with Acucraft’s reputation and brought our team in to rectify the situation.
Our team examined the work and recommended a complete replacement of the fireplace system while staying true to the original design. The result was a custom fireplace that truly completed the home and satisfied the homeowners.
“You have been the best we have worked with and thank you for your work thus far! I just wish we had gone with you from the beginning!”– Dan Grangroth, Martel Construction



The Connors reached out to their Contractor, Dan looking for options. The fireplace was the centerpiece of their room and they needed something extraordinary while maintaining their existing flue system and concrete slab surround. After doing some research Dan found Acucraft, he was impressed with our fireplaces and knew if anyone could find a solution for his dilemma, it would be us!
After reviewing the details of the fireplace with Dan we recommended replacing the entire system including the ducting, fan, hood and burner to ensure we could meet the customer’s desired flame height safely. The customer also was hoping to incorporate ceramic fire balls surrounding the burner, but for performance we recommended glass media in the burner tray then surround the tray with semi-polished black stones to match their aesthetic and maximize flame height. They were looking for flames reaching 18″-20″ in height that had a full body and steady flame, as shown in their inspiration photo below.



The Fireplace Vision
Fireplace Advisor, Ben, went through all the details with Dan (Contractor, Martel Construction), Travis (Project Manager, Martel Construction), and Jordan (Architect, Olson Kundig) to ensure all of the measurements and desirables were being met with this new Acucraft four sided indoor fire pit. Once Dan placed his deposit we were able to begin the design & fabrication process. Our Acucraft Project Manager and Engineering Services Manager partnered on this project to help bring the Connors’ dream fireplace to life.
Project Details
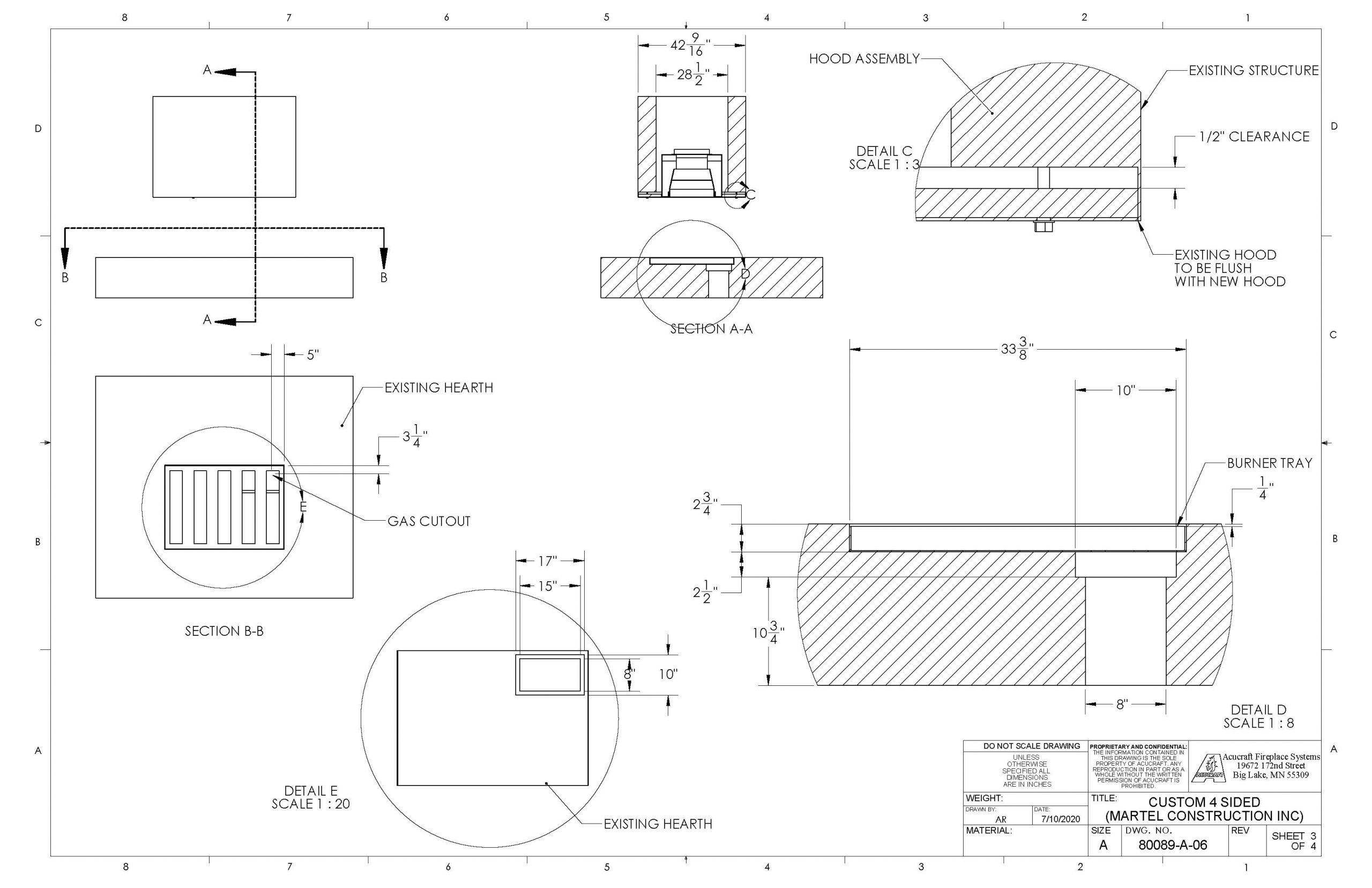
The homeowner loved the original fireplace’s design, but when it was completed, they were disappointed. The design was beautiful and unique, but the presentation was lacking; the flames were short and ultimately underwhelming. Martel Construction, the trusted contractor overseeing the project, recognized the need for a solution. Our team at Acucraft completed a thorough examination of the fireplace and carefully studied the original design intent; ultimately, we recommended a comprehensive replacement of the entire fireplace system, including ducting, fan, hood, and burner, ensuring the safety and success of the fireplace transformation. The result is a show-stopping custom fireplace boasting impressive 18”-20” flames, a testament to Acucraft’s commitment to meeting and exceeding the fireplace goals set for this beautiful Montana home. The homeowners, once disappointed, now revel in the satisfaction of a custom fireplace that truly lives up to their dreams and expectations. By purchasing a custom gas fireplace system, they received a complimentary on-site visit with one of our expert certified service technicians. He traveled to the Montana residence once the fireplace had been installed. Upon arrival, he verified the fireplace installation, calibrated the fireplace to ensure optimal flame height, and provided operation and maintenance training with the Connors.Project Specs
- Open Viewing Area: 48” W x 24” H
- 47” x 33” Burner Tray
- 170,000 BTU’s
- 18”-20” Flames
- 12” Class A Flue System

